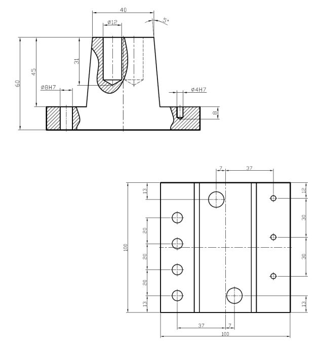
We will share here, some 2D exercises solved a couple years ago. They were done in version 2016, but the concept remains basically the same.

Vamos partilhar aqui, alguns exercícios 2D, resolvidos há alguns anos atrás. Estes foram executados na versão 2016, mas o conceito mantém-se basicamente o mesmo.

Vídeo:
VariCAD 2016 2D - Exercise 1 - YouTube